| このページは、2019年3月に保存されたアーカイブです。最新の内容ではない場合がありますのでご注意ください |
二俣観光鉄道C57形蒸気機関車
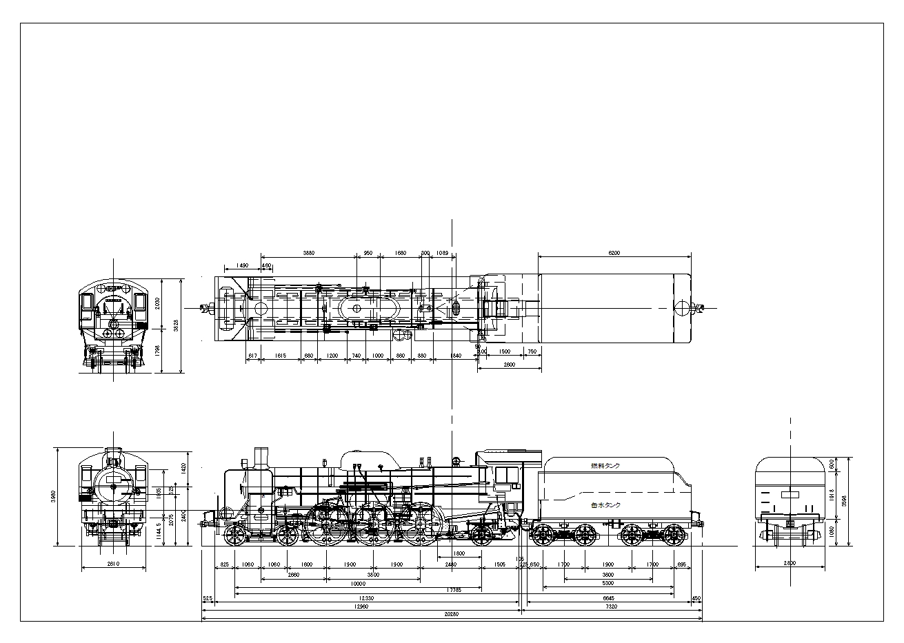
二俣観光鉄道C57形蒸気機関車です。静態保存で現存する旧国鉄C57形蒸気機関車を動態化して列車を運行する目的で設立された二俣観光鉄道では、特定の路線を持たず、ヨーロッパでのプルマン社や、ワゴンリー社のように、車両のみを所有、天竜浜名湖鉄道との交渉により、同社天浜線の路線を使用して蒸気機関車による観光鉄道を運用する事業を開始しました。その際環境保全に鑑み、燃料は灯油として、燃料噴射ポンプ、送風機を設置、これに要する動力電源としてタービン発電機を2機増設、さらに自動燃焼制御装置を設け、炭水車の炭庫部分を燃料タンクに改造する等、機関士の負担を極力少なくするとともに、煙害を最小限にする、さらにATS-STを搭載天浜線入線可能な状態に改造されました。当初は新製された車両群との6両1編成のみで運行されましたが、乗客の増加に伴い、天浜線の間合い運行で、上下1時間おき常時4編成に加えて予備1編成で運行されるまでになりました。C57形機関車も予備機を含めて6両整備され、現業の4両以外の2両は清掃または修理に充当する等、車体の美化にも心掛けています。なお機関士および乗務員並びに整備員は二俣観光鉄道の所属で、訓練されたボランティア乗務員も含まれています。なお、二俣観光鉄道の施設として、掛川駅、新所原駅構内に転車台と、検車庫を建設、途中駅に行き違い線を増設、掛川、新所原両駅に水タンク、燃料貯蔵施設を、二俣駅付近に車両基地を設けています。

| このページは、2019年3月に保存されたアーカイブです。最新の内容ではない場合がありますのでご注意ください |